株式会社プライド >> 開業候補地のご案内
| 開業候補地 | 既存(内科クリニック・調剤薬局 併設型候補地 |
| 住所 | 福岡県大野城市 |
| 候補診療科目 | 内科、耳鼻科、小児科他、眼科など |
| 候補地周辺環境 | 福岡市内に隣接するベッドタウン環境。又近年3000世帯以上の新興住宅街が近くに建設される予定ですので、人口密度は増加傾向にあります。立地は県道574号線(大宰府・空港線)沿いですので、大野城市における生活導線の中心地にて開業していただけます。内科クリニックと併設する外科クリニックなどに適した好立地条件の候補地です。是非お問い合わせ下さい |
| ・駐車場20台以上収容可能 |
| 開業候補地 | 既存(整形外科クリニック・調剤薬局 併設型候補地 Aエリア |
| 住所 | 福岡県久留米市合川町 |
| 候補診療科目 | 内科、耳鼻科、小児科他、眼科など |
| 候補地周辺環境 | ゆめタウン久留米から車で約1分。久留米市の骨格となる広域幹線道路「中環状(仮)」が候補地の真横を通ることになっており整形外科クリニックと併設する好立地条件の候補地です。是非お問い合わせ下さい |
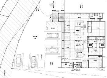
| ・両候補地駐車場30台以上収容可 | ![]() |
![]() |
|
Aエリア配置イメージ クリックするとPDFファイルが開きます。 |
|
| 開業候補地 | 既存(整形外科クリニック・調剤薬局 併設型候補地 Bエリア |
| 住所 | 福岡県久留米市合川町 |
| 候補診療科目 | 内科、耳鼻科、小児科他、眼科など |
| 候補地周辺環境 | ゆめタウン久留米から車で約1分。久留米市の骨格となる広域幹線道路「中環状(仮)」が候補地の真横を通ることになっており整形外科クリニックと併設する好立地条件の候補地です。是非お問い合わせ下さい |
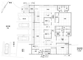
| ・両候補地駐車場30台以上収容可 | ![]() |
![]() |
|
Bエリア配置イメージ クリックするとPDFファイルが開きます。 |
|
| 開業候補地 | 飯塚市クリニック開業候補地 |
| 住所 | 福岡県飯塚市小正 |
| 候補診療科目 | 整形外科、耳鼻科、小児科、眼科等 |
| 候補地周辺環境 | 裏手スーパーマーケット有り、 その他郵便局、小学校、高校、バス停、 歯科診療所、私立病院など近隣に有り、住宅街八木山バイパス穂波東口近く 駐車場台数多数確保。お気軽にお問い合わせ下さい。 |
| ・駐車場50台以上収容可能 |
開業候補地を元に新規立ち上げから業務支援、コンサルティングまで、高水準低コストのバックアップ体制で支援致します。これから開業を検討されているドクターの皆様は、是非お気軽にお問い合わせ下さい。
「新規クリニックの立ち上げには高額な費用がかかるので、第1歩が踏み出せない…」開業に関してもっとも気になる問題です。
・新規開業費用は全部でどれほどかかるのか?
・開業後の支援体制と費用が高額なのでは?
立ち上げ費用や運営コストに関わるお悩みを是非お聞かせ下さい。高水準低コストの運営ノウハウで、ドクターのお力になれるよう対応させていただきます。
お電話でのお問い合わせ TEL 0948-24-5570 株式会社プライド
メールフォームからのお問い合わせはこちら
その他好条件の候補地多数あります。詳細はお問い合わせ下さい。